DAS TEMPLERHAUS IN AMORBACH UM 1320
BESCHREIBUNG

Die Gebäudebezeichnung “Templerhaus” ist etwas irreführend, denn dieses Gebäude stand in keiner Beziehung mit dem Orden der Templer.

Aufgrund der Arbeiten der Denkmalpflege habe ich diese Anordnung im Diorama rekonstruiert. Der Bildausschnitt zeigt den befestigten Adelshof in belebtem Zustand. Der Tuchhändler mit seinen Gehilfen ist eingetroffen und bringt neben den neuesten Stoffen auch einige Neuheiten aus fernen Ländern mit. Lebhafte Farben sind in jener Zeit allgemein beliebt. Eine solche Begebenheit wurde von allen Bewohnern mit Begeisterung aufgenommen, denn dies brachte jedesmal eine kleine Abwechslung in den doch so tristen Alltag. Die wandernden Händler, die Seidenstoffe aus dem Orient oder Brokate aus Italien mit sich führen, wissen, daß sie auf den Burgen stets willkommen sind - es sei denn, daß der König gerade ein Gesetz gegen die Verschwendung erlassen hat.

Die Geschichte des Bauwerkes reicht ins 13. Jahrhundert zurück und weist mehrere Bauperioden auf, an deren Ende jeweils entscheidende Veränderungen in den Besitzverhältnissen, in der Nutzung und in der Gestaltung auftraten.

Die frühesten, mutmaßlichen Eigentümer sind der adeligen Ministerialität im Umkreis staufischer Gefolgsleute zuzurechnen. Man kann davon ausgehen, daß die Ritter und kleineren Grundherren auch im ausgehenden 13. Jahrhundert noch mindestens einen größeren Hof in eigener Regie bebauten und so die Grundversorgung Ihrer Familien gewährleisten. Dieser Hof ist entweder ein alter Herrenhof oder ein Wirtschafthof in engster Nähe zum ritterlichen Besitz. Neben den üblichen Formen des Ackerbaus und der Getreideproduktion widmet sich ein Teil dieser Eigenbauhöfe besonders der Milchwirtschaft und der Aufzucht von Pferden.

Zahlreiche “Burgen” des niederen Adels waren in wirklichkeit nur bescheidene Wohntürme und wenig repräsentive Burghäuser; oft waren es Bauten mit Fachwerkobergeschossen auf steinernen Sockeln oder durch Wassergräben gesicherte Weiherhäusre. Unter diesen Wohnsitzen der kleinen Rittergeschlächtern trift man vielerorts auch befestigte Meierhöfe, kleine Ansitze und unauffällige Gebäude, die keinen Vergleich mit reichen Patritzierhäusern uns Adelstürmen in den Städten aushalten uns sich manchmal kaum von den Höfen der Bauern unterscheiden.

Ein interessanter Link zum Templerhaus:
Bitte hier klicken!

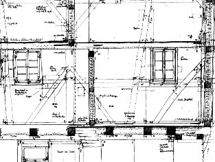
1981 wurde bei Untersuchungen am Fachwerk festgestellt, daß die Holzstämme1291 verarbeitet wurden. Damit handelt es sich um eines der ältesten Fachwerrbauten in Bayern. In mühevoller Kleinarbeit wurde das Gebäude restauriert und der Bevölkerung zugänglich gemacht. Die enthaltene Substanz ermöglicht jedoch keine 100% Rekonstruktion der Bausituation von 1320.

BUCHTIP: DAS TEMPLERHAUS IN AMORBACH
Arbritshefte des Bayerischen Landesamtes
für Denkmalpflege
Autor: Wolf Schmidt
Albrecht Dürer
Weiherhaus - Aquarell
BuiltWithNOF

[Home] [Dioramen] [Küche] [Hochzeit] [Stadt] [Templer] [Falkenjagd] [Bärenjagd] [Nikopolis] [Turnier] [Gallerie] [Links] [1743] [Eigene Figuren] [Werkbank] [Verkauf] [Impressum]